
Oceanside @78
Three rooms
Two rooms
2424 Vista Way, Oceanside, CA 92054
- One block north of Hwy 78 off Jefferson exit.
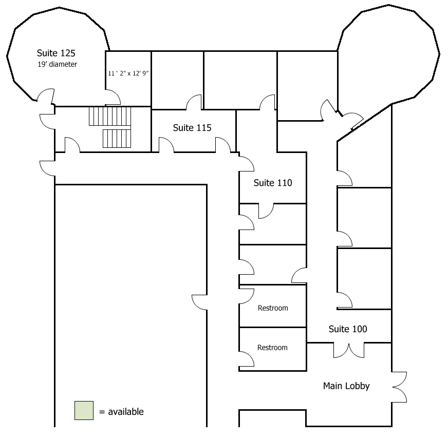
- This location is a mix of 2-room, 3-room, and one multi-room suites.
AT&T Business Fiber Internet service available. No shared Internet is offered at this location.
2424 Vista Way, Oceanside, CA 92054
| Unit: | Size: | Utilities | Available: | Rent: |
|---|---|---|---|---|
| 100 | multi-room – 1,432 RSF | rented | rented | rented |
| 102 | 1-room – 179 RSF | rented | rented | rented |
| Unit: | Size: | Utilities | Available: | Rent: |
|---|---|---|---|---|
| 110 | 3-room – 644 RSF | rented | rented | rented |
| 115 | 2-room – 303 RSF | rented | rented | rented |
| 125 | 2-room – 515 RSF | rented | rented | rented |
| 316 | 2-room – 485 RSF | rented | rented | rented |
| 317 | 2-room – 579 RSF | rented | rented | rented |




